Gewerbekomplex Hallen sowie Bürotrakt in Bestlage von Heilbronn!
Eckdaten
- Art Industriehalle mit Freifläche
- Lage 74078 Heilbronn
- Preis auf Anfrage ja
- Grundstück ca. 9.300 m²
- Gesamtfläche ca. 4.300 m²
- Nutzfläche ca. 3.900 m²
- Heizungsart Öl-Heizung
- Kaution 3 Monatskaltmieten-Kalt
- Bezugstermin nach Absprache
- Fahrzeit nächste Autobahnauffahrt 2 min
- Bodenbelag Beton
- Immobilien-ID 154250929
- Provision inkl. MWST ja
- Provision 1,19 Monatskaltmieten inkl. der gesetzlichen Mehrwertsteuer
Immobilie
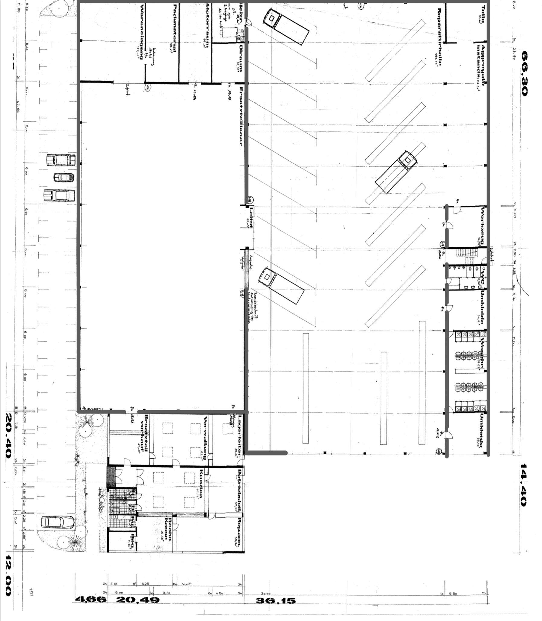
Grundstücksgröße: ca 9300 qm, (106×88 Meter)
Komplett eingefriedetes Grundstück, große Hofschiebetore, befestigte Hofflächen, Hallen komplett um- und durchfahrbar
Überdachte große Durchfahrt als Zufahrt (15×12 Meter) zu seitlichen Hallentoren und in den Hinterhof .
Die befestigte Freifläche beträgt:ca. 5000 qm
Gebäudegesamtnutzfläche ca. 4300 qm mit folgender Aufteilung:
Halle 1: ca. 2400 qm (66 x 36 Meter) diese ist komplett freitragend und ohne jegliche Stütze.
Höhe hier 7,5 Meter (unter Unterzug 6,4 Meter)
Insgesamt sehr hell durch Oberlichter und Wandverglasung rund herum.
5 große verglaste Sektionaltore mit 4,5 Meter Höhe
Die Oberlichter sind zum Öffnen und mit einer Rauch- und Wärmeabzugsanlage ausgestattet.
Es sind mehrere Nebeneingangstüren vorhanden.
Sozialräume, Lager auf 2 Etagen mit ca. 180qm und zusätzlichem separatem Eingang.
Es sind 8 Lkw-Gruben vorhanden – 3 sind offen, 5 abgedeckt und voll mit dem Lkw-überfahrbar, der Boden ist gefliest mit komplett durchgehender Mittelrinne, dieser ist mit dem Lkw befahrbar.
Druckluftleitungen sind vorhanden, die Hallenheizung läuft über 2 große Lufterhitzer, diese werden mit Öl befeuert.
Halle 2: verfügt über ca.1500 qm (60 x 25 Meter) diese ist komplett freitragend ohne jegliche Stütze.
Mit einer Höhe von 5 Metern (unter Unterzug 4 Meter), sehr hell durch die Oberlichter und die Wandverglasung sowie 2 große verglaste Sektionaltore mit 4 Meter Durchfahrtshöhe. Die Oberlichter sind zum Öffnen.
Auch hier ist eine Rauch -und Wärmeabzugsanlage installiert, ein Raumeinbau von ca. 120 qm (bestehend aus 3 separaten Räumen), die verglaste Trennwand ist aus Leichtbau.
In dieser Halle befindet sich ein Meisterbüro, sowie mehrere Nebeneingangstüren die Hallenheizung ist wie in Halle 1 beschrieben.
Der Bürotrakt: Ca. 400 qm (20 x 20 Meter), großzügiges offenes Büro mit mehreren Arbeitsplätzen, sehr hell, auch hier sind Oberlichter zum öffnen vorhanden, zusätzlich Fenster mit großer Schiebetüre.
2 abgetrennte, verglaste und möblierte Büros befinden sich hier, sowie 1 klimatisiertes sehr helles Chefbüro.
Des Weiteren liegt hier ein klimatisierter großer und möblierter
Schulungsraum inklusive Beamer + Leinwand für bis zu 20 Personen, weitere Sozialräume, großzügige Kunden- WC's und ein Vorraum für die Ausstellung.
Es sind 2 Büroeingänge und zusätzliche Nebeneingänge vorhanden.
Besondere Highlights sind die Büroterrasse und die 12 Meter lange und repräsentative Kundentheke mit Barhockern, die Einrichtung gleicht einer Sportsbar.
Heizung hier ebenfalls Umluft -Öl.
Letzte Instandhaltungsmasnahmen:
Die Fassade wurde neu gestrichen, ebenfalls wurden neue Nebeneingangstüren eingebaut,
2 neue Ölabscheider für Halle und Freiflächen, sowie ein 50000 Liter unterirdischer Öltank sind vorhanden.
Eine Alarmanlage, sowie eine Nachtbeleuchtung und ein großer beleuchteter Werbeschildständer direkt an der Straße, runden dieses besondere Angebot ab.
Es sind zusätzlich als Werbefläche noch 6 Fahnenmasten auf dem Grundstück.
Lage
Direkt in Heilbronn Neckargartach gelegen im Gewerbegebiet an der Neckartalstrasse, nähe der Bundesautobahn Auffahrt Obereisensheim.
Sowie an der künftig neuen vierspurigen Zuffahrtsstraße im Gewerbegebiet der Böllinger Höfe und der B39 als Umfahrung von Heilbronn Neckargartach und Frankenbach.
Ausstattung
– 9300 qm Grundstücksfläche
– 4300 qm Gesamtfläche unterteilt in
– 2 große Hallen
– Bürotrakt
– Sozialräume
– Schulungsraum mit Beamer und Leinwand
– Kunden Wc's
– 12 Meter repräsentative Kundentheke mit Barhockern- Einrichtung wie Sportsbar
Merkmale:
– sehr hell
– 50000 Liter unterirdischer Öltank
– 2 neue Ölabscheider
– Fassade neu gestrichen
– Nebeneingangstüren erneuert
– Alarmanlage
– Werbefläche an der Straße sowie 6 Fahnenmasten
– Nachtbeleuchtung
– sehr gute zentrale Lage
Sonstiges
Das Objekt wurde in den letzten 25 Jahren als KFZ Werkstatt PKW/LKW, Abschleppunternehmen, sowie Entsorgungsfachbetrieb und zum Vertrieb von Nutzfahrzeugen sowie Teilen.
Hat diese Immobilie Ihr Interesse
geweckt?
Dann geben Sie bei Ihrer Anfrage Ihren vollständigen Namen mit Anschrift an, damit wir Ihre Anfrage schnellstmöglich bearbeiten können. Selbstverständlich haben Sie auch die Möglichkeit in unserer Geschäftsstelle, in der Heinsheimer Str. 27, 74906 Bad Rappenau Einsicht in die Unterlagen zu diesem Objekt zu nehmen.
Hinweise/Haftungsausschluss: Für die Vollständigkeit und Richtigkeit aller
Angaben wird keine Haftung übernommen, da sie auf Informationen Dritter basieren.
Datenschutzerklärung: https://www.immobilien-renner.com/index.php/faq
Energieausweisangaben
- Heizungsart Öl-Heizung
Herzlichen Dank für Ihre Anfrage.
Wir werden diese so schnell wie möglich bearbeiten.

